Jubileummagazine aanvragen

Broekhuizen | Gehandicaptenzorg als missie

In Broekhuizen staat een woonlocatie voor gehandicaptenzorg. De dag is hier echt geslaagd als iedereen een leuke dag heeft gehad. 

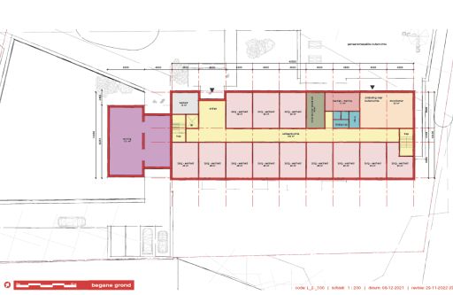
Samen Investeren heeft een voormalige boerderij buiten Meppel aangekocht met veel ruimte om het gebouw. Op dit perceel rust reeds een maatschappelijke bestemming en is ook qua ligging erg geschikt als zorglocatie met zowel wooneenheden als dagbesteding.

Het woonhuis is in goede staat en kan fungeren als beheerderswoning. De achterliggende opstallen moeten worden gesloopt om plaats te maken voor nieuwbouw met 33 eenheden. Daarnaast is het de bedoeling dat we een gebouw voor dagbesteding realiseren, waar dagelijks ca 40 deelnemers aan de slag kunnen voor bedrijven uit de omgeving. 

Wilt u ook investeren?

Samen met u investeren wij in vastgoed voor commerciële en maatschappelijke ondernemingen. Graag vertrekken we met een persoonlijk gesprek om uw wensen, belangen en drijfveren helder te krijgen. Vanuit het beeld dat daaruit ontstaat zoeken we naar een passende belegging.

Ook investeren? Maak een afspraak met Ralph, Peter of Cees.

Uw bericht is succesvol verzonden
Er ging iets mis, probeer het later opnieuw

Meer projecten

Wilt u ook investeren?

Samen met u investeren wij in vastgoed voor commerciële en maatschappelijke ondernemingen. Graag vertrekken we daarin bij u als investeerder, door in een persoonlijk gesprek uw wensen, belangen en drijfveren helder te krijgen. Vanuit het beeld dat daaruit ontstaat zoeken we naar een passende belegging.